Обяви 0 За нас Контакти
Продава 2-СТАЕН
град Пловдив, Христо Смирненски
97 500 €
190 693.43 лв.

(1 500 €, 2 933.75 лв./m2)
Цената е с включено ДДС
История на цената
Коригирана в 11:21 на 16 април, 2026 год.
Обявата е посетена 543 пъти.
Площ:
65 m2
Етаж:
5-ти от 6
Строителство:
Тухла, Ще бъде въведен в експлоатация 2028 г.

Описание на имота:


📢 0% КОМИСИОН! ДИРЕКТНИ ПРОДАЖБИ, 18053
Агенция за недвижими имоти 'ГОЛД ИМОТИ' има удоволствието да Ви представи новостроящ се обект в кв. Христо Смирненски!
✨ Комбинация от модерна архитектура, висока енергийна ефективност, премиум материали и внимателно планирана жилищна среда, която е подходяща както за динамично ежедневие, така и за дългосрочно спокойствие и удобство. Всяко пространство е планирано така, че да бъде практично, уютно и устойчиво във времето.
Проектът е създаден, така че да отговори на нуждите на съвременния градски човек с удобства, светли пространства и оптимални разпределения, които създават усещане за комфорт и завършеност.

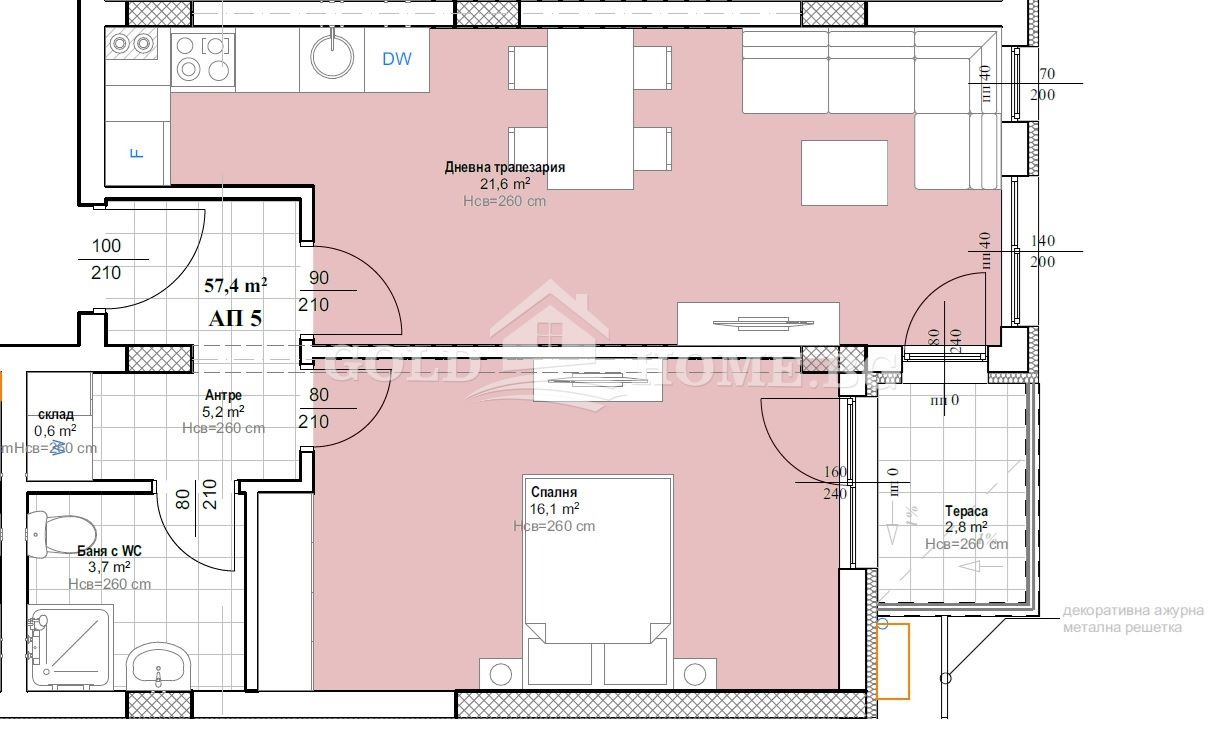
🎯Жилището е ситуирано на пети етаж и се състои от: входно антре, всекидневна с кухненски бокс, спалня, баня с тоалетна и тераса, на която се излиза и от двете стаи.
Разполагаме със същия модул и на:
-ет.2 - ап.5 - 97 800 ;
-ет.3 - ап.11 - 98 000

Изложение: изток

✔️Степен на завършеност :
Апартаментите ще бъдат издавани по БДС: шпакловка и замазка, ел. инсталация до ключ, ВиК до тапа, външна блиндирана врата, алуминиева дограма.

🎯 Характеристики и предимства:
-Две огледални сгради с висококачествени и енергоефективни материали;
-Френски прозорци за оптимално естествено осветление;
-Алуминиева дограма;
-Висок клас шумо и топлоизолация;
-Премиум общи части;
-Висококапацитерен и тих асансьор.

📄 Срокове на изпълнение:
Към момента сградата е на Кота 0.00
Акт 14 се очаква до края на 2026-та година;
Акт 15 се очаква в срок до август 2027-ма година;
Акт 16 - началото на 2028-ма година.

✔️Схеми на плащане:
Разсрочени схеми на плащане:
-30% на предварителен договор;
-30% на акт 14;
-30% на акт 15;
-10% на акт 16.

Можем да предложим различна схема на плащане при наличие на банков кредит.

📍 Локация:
🎯Стратегически избрано място, което предлага спокойствие и уют и същевременно директен достъп до главен булевард , осигуряващ лесно придвижване до всички точки на града .

📍В неепосредствена близост се намира магазин Lidl , където можете да немрите още няколко по-малки хранителни магазин, Lilly дрогерия, както и редица други специализирани магазини.

📍В близост са и Гребна база, СОУ 'Свети Кирил и Методий, детска градина 'Светла'.

➡️'ГОЛД ИМОТИ' Ви предлага да се възползвате от професионално кредитно посредничество чрез Credit Center при ипотека, потребителски кредит и рефинансиране!
-УСЛУГАТА Е ИЗЦЯЛО БЕЗПЛАТНА!
-ИЗГОТВЯНЕ НА НЯКОЛКО ОФЕРТИ ОТ ВОДЕЩИ БАНКИ!
-НАЙ-ИЗГОДНИ УСЛОВИЯ СПРЯМО ВАШИЯТ ПРОФИЛ!
-НЕ Е НЕОБХОДИМО ДА СЕ РАЗКАРВАТЕ ВЪВ ВСЕКИ КЛОН НА РАЗЛИЧНИ БАНКИ!
➡️ Още атрактивни и актуални оферти може да разгледате на нашият сайт: www.goldhome.bg
📞 За повече информация и при интерес за оглед, моля свържете се с нас.
Особености
Тухла
Асансьор
С гараж
С паркинг
За контакт:
0893551152
Брокер:
Генка Пеева
0893 551 152
Още оферти от брокера: Продава | Дава под наем | Купува | Наема
Агенция:
ГОЛД ИМОТИ
0899143262
ГОЛД ИМОТИ logo
Медал за прослужено време
В imot.bg от 2018 г.
gold_imoti.imot.bg
Адрес:
област Пловдив, гр. Пловдив, улица '' Брезовска '' 31а
ИЗПРАТИ ЗАПИТВАНЕ
ИЗПРАТИ ЗАПИТВАНЕТО

Продава 2-СТАЕН
град Пловдив, Христо Смирненски
Обява: 1b176847705782281

97 500 €
190 693.43 лв.
История на цената
(1 500 €, 2 933.75 лв./m2)

Цената е с включено ДДС
ЗАПАЗИ ОБЯВАТА

Местоположение: град Пловдив, Христо Смирненски

Допълнителни данни за имотите в района и сравнение с други райони

Покажи

Период

и 5 месеца

* Средните цени са определени чрез медианна стойност